Home / Sức mạnh quân sự / Ốc đảo dịu mát trong ngôi nhà hướng Tây ở Sài Gòn

Ốc đảo dịu mát trong ngôi nhà hướng Tây ở Sài Gòn

Ốc đảo dịu mát trong ngôi nhà hướng Tây ở Sài Gòn
 

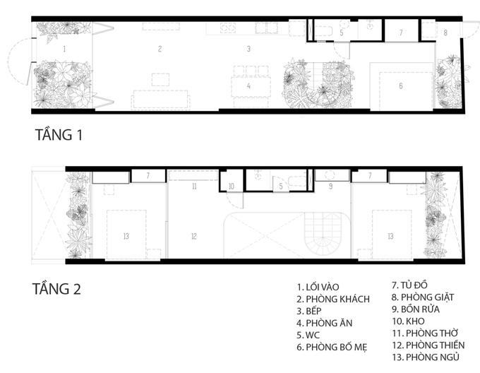
Mảnh đất 72 m2 ở quận 9 (TP HCM) giống các lô đất dạng ống quen thuộc khác ở Việt Nam. Chủ nhà theo đạo Phật, từng học kiến trúc, muốn nơi ở trở thành một chốn bình yên nhưng vẫn có những nét thu hút đặc biệt.

 

Ốc đảo dịu mát trong ngôi nhà hướng Tây ở Sài Gòn
 

Hình ảnh cách điệu “Phật ngồi đài sen” xuất hiện ở mặt tiền, trên tường do chính chủ nhà thiết kế.

 

Ốc đảo dịu mát trong ngôi nhà hướng Tây ở Sài Gòn
 

Ngôi nhà hướng Tây ở thành phố quanh năm nắng nóng. Các khu đất xung quanh vẫn chưa xây dựng nên công trình nhận toàn bộ nhiệt. Các kiến trúc sư của H.a workshop tạo nhiều lớp ngăn cách nơi ở với bên ngoài giúp nhà mát mẻ hơn nhiều. Đó là lớp thép đục lỗ, cây xanh, tường, kính.

 

Ốc đảo dịu mát trong ngôi nhà hướng Tây ở Sài Gòn
 

Gia đình có 7 thành viên, thêm một em bé sắp chào đời với 3 thế hệ cùng chung sống trong phạm vi nhà 2 tầng. Họ là những người tới từ miền Trung vốn quen với không gian thoáng đãng.

 

Ốc đảo dịu mát trong ngôi nhà hướng Tây ở Sài Gòn
 

Bởi vậy, bài toán của người thiết kế là tạo không gian sống rộng nhất có thể trong ngôi nhà chật hẹp, bí bức.

 

Ốc đảo dịu mát trong ngôi nhà hướng Tây ở Sài Gòn
 

Các khu vực chức năng được xóa nhòa ranh giới giúp cho ánh sáng lan tỏa khắp nơi, gió thoảng qua chỗ tiếp khách, bàn ăn…

 

Ốc đảo dịu mát trong ngôi nhà hướng Tây ở Sài Gòn
 

Vườn cây cũng được bố trí rải rác ở sân trước, giếng trời, sân sau nhà.

 

Ốc đảo dịu mát trong ngôi nhà hướng Tây ở Sài Gòn
 

Các phòng ngủ có diện tích nhỏ nhưng không có cảm giác chật nhờ sử dụng nội thất sáng màu, hướng nhìn ra các mảng cây xanh. Giường dạng phản giúp trần nhà có cảm giác cao hơn.

 

Ốc đảo dịu mát trong ngôi nhà hướng Tây ở Sài Gòn
 

Những không gian chức năng như WC, nơi để đồ, kho được cất gọn vào hệ tủ gỗ. Phần hành lang giúp kết nối các phòng ngủ, khu vực nghỉ ngơi ở tầng 2 và sinh hoạt chung ở tầng một.

 

Ốc đảo dịu mát trong ngôi nhà hướng Tây ở Sài Gòn
 

Đồ đạc trong nhà được tối giản, tạo thành một khối liên kết tủ đồ-giá sách-bàn làm việc giúp các phòng đồng bộ, gọn hơn.

 

Ốc đảo dịu mát trong ngôi nhà hướng Tây ở Sài Gòn
 

Vách ngăn di động, rèm trắng nhẹ nhàng dễ dàng điều chỉnh ánh sáng, mở rộng không gian khi cần thiết.

 

Ốc đảo dịu mát trong ngôi nhà hướng Tây ở Sài Gòn
 

Ngôi nhà hoàn thiện không có nhiều đồ đạc đắt tiền nhưng đem lại cảm giác thư thái, hạnh phúc cho người chủ nhiệt huyết, chăm chút từng chi tiết trong nơi ở.

 

Các chi tiết nội thất trong ngôi nhà mặt tiền có họa tiết ‘Phật ngồi đài sen’.

 

Ốc đảo dịu mát trong ngôi nhà hướng Tây ở Sài Gòn
 
 

Ốc đảo dịu mát trong ngôi nhà hướng Tây ở Sài Gòn
 
 

Ban Mai
Ảnh: Quang Dam

Chia sẻ nhà đẹp, vườn cây của bạn bạn tại đây.

Xem thêm:

  • Nhà mái lá ở Trà Vinh khiến người thành phố cũng mơ ước
     
  • Nhà công nhân đẹp như khách sạn ở Lào Cai
     

About admin

Tin quan tâm

Tương quan sức mạnh quân sự Triều Tiên với các cường quốc

Đồ họa: Việt Chung

Trả lời

Thư điện tử của bạn sẽ không được hiển thị công khai. Các trường bắt buộc được đánh dấu *