
Ngôi nhà ở Kanagawa (Nhật Bản) khiến nhiều người qua đường tò mò bởi mặt tiền là những mảng tường trắng tinh, không có cửa sổ, lối vào. Ở đó, chủ nhà trồng duy nhất một cây dừa nổi bật trên nền màu trắng. Lý do chính là phía mặt tiền tiếp giáp đường lớn đông đúc nên gia chủ muốn tránh mọi ánh mắt tò mò và có sự yên tĩnh. Lối vào nằm ở bên hông nhà.

Tuy nhiên, ngôi nhà vẫn rất thoáng rộng nhờ mặt sau hướng nhìn ra biển.

Ở mặt này, gia chủ lắp đặt cửa kính cao từ sàn tới trần nhà hướng nhìn ra bể bơi lớn và biển.

Tất cả các bức tường, trần, sàn, đồ đạc đều thuần nhất tông trắng. Chỉ có một vài vật dụng như vòi nước, vòi hoa sen kim loại có màu xám.

Ngôi nhà có bố trí ngược so với quan điểm thông thường khi không gian nghỉ ngơi nằm ở tầng một. Từ phòng ngủ, các thành viên trong nhà có thể bước thẳng ra bể bơi bên ngoài.

Tầng một của nhà nằm cao hơn hẳn so với mặt đường nên các khung cửa sổ lớn đều được làm kính trong suốt, không che chắn.

Cầu thang xoắn ốc giống tác phẩm điêu khắc nằm ngay dưới giếng trời được che tấm lợp trắng mờ.

Khu vực sinh hoạt chung nằm trên tầng 2 với cửa lùa có thể mở rộng tối đa ra khoảng ban công lớn bên ngoài.

Bạn cảm thấy ngôi nhà như trống rỗng, không có đồ đạc cá nhân? Trên thực tế, chủ nhà tạo ra hệ thống tủ âm tường để cất toàn bộ vật dụng.

Lan can cũng làm bằng kính nên không gian này như được nới rộng hơn và liên thông ra với biển.

Đèn trong nhà mang sắc cam nhạt để tạo sự ấm áp vào buổi tối.

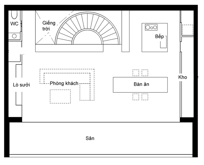
Mặt bằng tầng một.

Mặt bằng tầng 2.
An Yên
Ảnh: Home & Decor
Chia sẻ nhà và vườn của bạn tại đây.
- Ngôi nhà Hà Nội thoáng đãng dù bị bao vây bốn phía
- Căn nhà tồi tàn gây bất ngờ khi sửa với 400 triệu
Binh Nghiệp Việt Nam