
Ngôi nhà ở quận Tân Phú (TP HCM) có hai tầng, một lửng với vẻ ngoài cũ kỹ, thông gió kém, thiếu ánh sáng, các phòng tồi tàn. Việc cải tạo nhà bắt đầu từ mặt đứng tối giản với hệ cửa lam sắt đóng mở dễ dàng. Ngoài yếu tố thẩm mỹ, công năng thông gió, đây còn là hệ cửa thoát hiểm phòng trường hợp xảy ra sự cố.

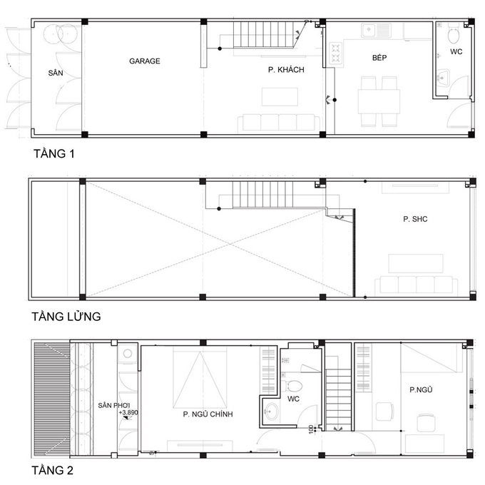
Khung nhà được giữ nguyên để tiết kiệm chi phí sửa chữa nhưng các kiến trúc sư của Sawadeesign đã có những thay đổi phù hợp để nhà thoáng hơn. Cầu thang được đổi hướng từ dạng chữ U thành thang một vế, tầng lửng (khoảng màu hồng nhạt) được chuyển ra phía sau.

Bố trí mới của nhà sau khi cải tạo.

Việc di chuyển thang vào sát tường và tầng lửng về phía sau giúp không gian tầng một rộng rãi hơn. Nhà có cả chỗ để xe hơi, 2 xe máy mà phòng khách, bếp vẫn thoải mái.

Nhà bếp cũ chắp vá không đáp ứng được công năng. Sau khi sửa, khu vực này như được lột xác hoàn toàn.

Bếp và bàn ăn nằm tách biệt với phòng khách nhờ chênh lệch độ cao sàn nhà.

Cầu thang cũ khá nhỏ và có các chiếu dừng chật hẹp đã được thay thế bằng cầu thang mới rộng với tầm nhìn thoáng sáng.

Phần gác lửng ngăn cách với cầu thang bằng các thanh lam đảm bảo an toàn và có dáng vẻ thanh thoát.

Đây là khu vực sinh hoạt chung có thể chuyển đổi mục đích khi các con lớn.

Gia đình chủ nhà có hai vợ chồng và hai con nhỏ, mong muốn một không gian sống đơn giản và tiện ích. Tổng chi phí cải tạo nhà là 400 triệu đồng.

Phòng ngủ của các con được bố trí phía sau tầng 2 với các khung cửa sổ đủ lấy sáng và đảm bảo riêng tư tương đối.

Dù diện tích nhỏ nhưng kiến trúc sư vẫn tạo ra được khoảng sân nhiều nắng, gió, có màu xanh thiên nhiên.

Khu vực vệ sinh mới đã đủ tiện ích sau khi sửa.
Hồng Liên
Ảnh: Quang Dam
Chia sẻ ngôi nhà và vườn của bạn tại đây.
- Gia đình Hà Nội sửa căn hộ 60 m2 hết 260 triệu
- Nhà có cây mọc xuyên mái giữa khu vườn Hà Nội 300 m2
Binh Nghiệp Việt Nam